Four researchers on Earth are spending a year on ‘Mars’
Locked in Mars Dune Alpha, they’ll test how visitors might handle life on the Red Planet
Here’s (from left) Anca Selariu, Nathan Jones, Kelly Haston and Ross Brockwell on June 25, 2023. They were about to enter Mars Dune Alpha (behind them). They’re due to stay inside it for more than a year, learning what it could be like to live on the Red Planet.
Josh Valcarcel/NASA
By Payal Dhar
Listen to this story:
Have feedback on the audio version of this story? Let us know!
On June 25, four NASA recruits set off for to Mars — on Earth.
They embarked on the first of three year-long missions to prep Earthlings for life as extraterrestrials. But these missions are terrestrial.
This summer, the first crew of four volunteers entered a unique structure called Mars Dune Alpha. It’s located at NASA’s Johnson Space Center in Houston, Texas. The crew will stay inside it for a year. Their mission: to live and work as if they were on the Red Planet.
Visits two and three should start in 2025 and 2026. Each mission is being designed to prep astronauts for an actual stay on the Red Planet.
NASA plans to send a crew to Mars, possibly as early as 2040. Getting there will take a lot of work. High on the list will be getting the spaceships, landers, habitats and computers ready. But will people know how to survive on Mars?
That’s where a project known as Crew Health and Performance Exploration Analog — or CHAPEA — comes in. Its missions will monitor the physical and mental health of people as they spend long months in a place that’s as much like Mars as can be modeled on Earth. The volunteers’ experiences will help scientists, engineers and astronauts start to foresee what an actual trip to Mars will entail.
What the crews will face
CHAPEA will investigate how our health and ability to carry out tasks “alters when you’re working as if you’re on Mars,” explains Kelly Haston. A member of the Mohawk Nation and the Six Nations of the Grand River in Canada, she’s commanding this first mission. With a PhD in biomedicine, she’s used stem cells to study liver disease, reproduction and the nervous system.
Trained as a structural engineer, Ross Brockwell is her crew’s engineer. Nathan Jones, an emergency medicine physician, will serve as the in-house doctor. And Anca Selariu, the crew’s microbiologist, is a specialist in infectious diseases. She’s also an officer in the U.S. Navy.
Throughout a year in Mars Dune Alpha, this quartet “will face challenges,” Haston notes. Some “will be surprises to us,” she adds, “because they will be emergencies.” The crew was warned to expect periods of scarce food and water, equipment failures and excessive workloads.
Indeed, NASA designed this environment to be as stressful as living on Mars would likely be.
Even as they face these challenges, many of the crew’s conditions won’t be truly Martian. Earth’s gravity is about three times as strong as that on Mars. Radiation levels also are far lower than on Mars. And temps in Mars Dune Alpha will not be kept at Mars’ average of around -63º Celsius (-81º Fahrenheit). The Red Planet’s atmosphere is more than 95 percent carbon dioxide. Mars Dune Alpha’s crew will breathe Earth’s air; it’s 78 percent nitrogen and 21 percent oxygen. Earth’s air pressure is different, too — 100 times higher than on Mars.
Each trip to the Red Planet or home again could take more than a year. So astronauts truly on their way to Mars would spend long periods in isolation. Plus, spaceships are pretty tiny. Even crew dwellings on Mars will be quite small. Mars Dune Alpha was designed to reflect such tight quarters. The crew will spend every waking hour with the same few people.
During that time, though, they’ll be kept quite busy. Working in pairs, they’ll operate a helicopter-like drone and their own “Mars” rover. With these tools, they’ll survey remote areas. They’ll try to identify and retrieve rock samples. The volunteers also will take occasional “Marswalks” outside their habitat. They’ll do this in a 111 square meter (1,200 square foot) sandbox. It’s meant to simulate the Martian soil.

What Mars-on-Earth looks like
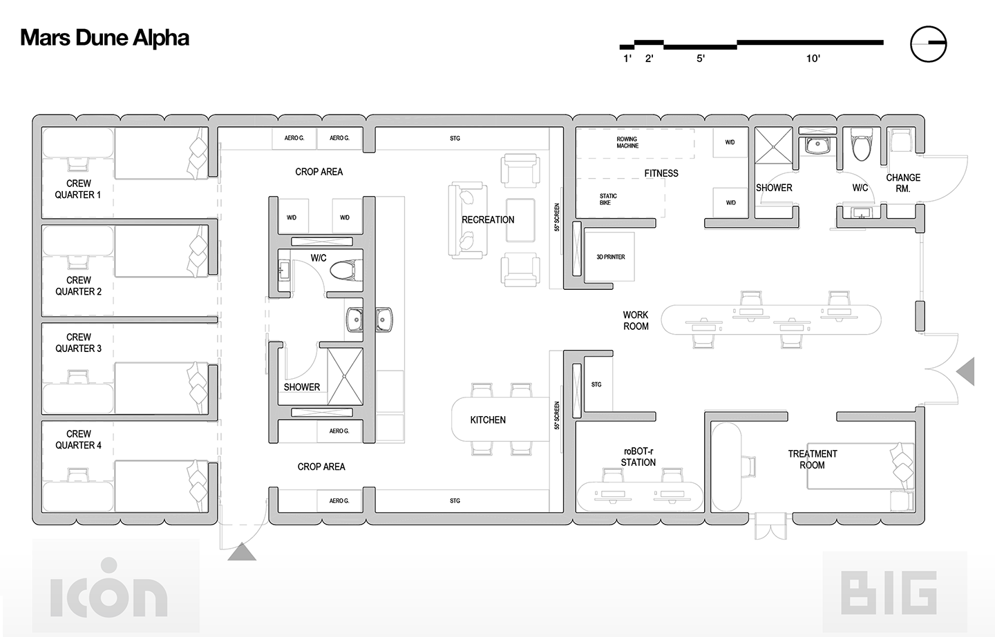
Mars Dune Alpha was 3-D printed. At 158 sq. meters (1,700 sq. ft.), it’s about the size of a three-bedroom apartment. There are four small living quarters and two bathrooms. There also are dedicated workstations, a medical area, a lounge and a galley. It would be too heavy to carry food from Earth, so astronauts going to Mars will have to produce their own. To prepare for that, the Mars Dune Alpha crew will grow its food in a vertical farm.
Deep-space homes will need to be highly durable, resilient and safe, notes Melodie Yashar. She’s a space architect at ICON. It’s the construction firm that 3-D printed Mars Dune Alpha.
NASA hopes to 3-D print any buildings on Mars, using local materials. That way the space agency won’t have to launch entire structures from Earth. With 3-D printing, “we can create a variety of structures” on the moon or some planet, “using the materials already present,” Yashar says. Those materials likely include the red Martian soil. ICON used its own “ink” to print Mars Dune Alpha. Called Lavacrete, this structural ink has been tinted red to appear Mars-like.
The printer didn’t have to cope with the atmosphere, gravity and radiation present on Mars, Yashar notes. But designing a Mars-on-Earth habitat was not unlike ICON’s projects for other isolated Earth environments. (They’ve worked on expeditions to Antarctica and deep-dive submarines.)
“With limited opportunities for resupply or evacuation, we design in a way that astronauts can be self-sufficient,” says Yashar. In space, there will be added environmental and health challenges. Those include microgravity, high radiation and extreme changes in temperature.
Educators and Parents, Sign Up for The Cheat Sheet
Weekly updates to help you use Science News Explores in the learning environment
Thank you for signing up!
There was a problem signing you up.
Living in isolation
To keep it as real as possible, Haston’s crew will have no immediate contact with their families. If they really were on Mars, it would take anywhere from three to 20 minutes to transmit data to and from Earth. So the crew will also experience a similar communications delay with Mission Control, despite it being just a short distance away.
And of course, Haston adds, “We have no one to call on if the toilet breaks.” So her crew will be expected to do any maintenance in the habitat.
Her crew won’t be the astronauts that NASA finally sends to Mars. But Haston says she feels “blessed” to be a small part of making that future mission possible.
“I’m a scientist, and I love challenges,” she says. “So this is the best of both worlds for me — to be a scientist and also a test subject at the same time. I’m giving back data to this effort in a unique way.”